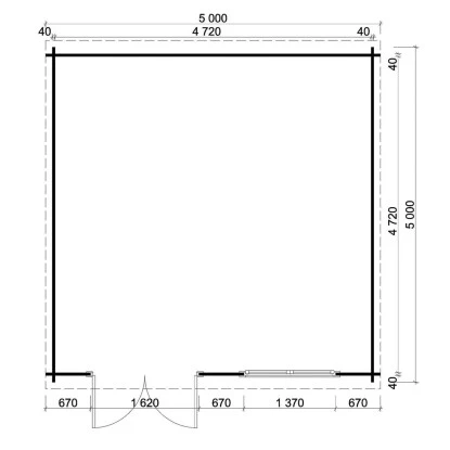
Das Alpholz Gartenhaus Atrium-40 A mit Pultdach bietet Ihnen eine großzügige Fläche von 504 cm x 525 cm, um Ihren Garten optimal zu nutzen. Das Außenmaß mit Dachüberstand beträgt 504 x 525 cm, während das reine Außenmaß 500 cm x 500 cm ist. Der Sockel hat die Abmessungen 480 cm x 480 cm, was eine solide Grundlage für das Gartenhaus bildet.
Mit einer Grundfläche von etwa 23 m² und einem Rauminhalt von ca. 47,8 m³ bietet dieses Gartenhaus ausreichend Platz für verschiedene Aktivitäten und Lagermöglichkeiten. Es verfügt über eine hochwertige Doppeltür mit den Maßen ca. 160 cm x 185 cm, die einen bequemen Zugang ermöglicht. Zusätzlich gibt es ein Doppelfenster von ca. 135,5 cm x 90 cm, das für eine gute Belüftung und ausreichend Tageslicht sorgt.
Die Rückwand des Gartenhauses hat eine Höhe von ca. 188 cm, während die Vorderwand eine Höhe von ca. 228 cm aufweist. Beachten Sie, dass innen verlaufende Dachbalken in diesen Maßen nicht enthalten sind. Das Gartenhaus hat eine Wandstärke von 40 mm, was für eine solide und robuste Konstruktion sorgt.
Im Lieferumfang des Gartenhauses sind ein massives Holzdach aus Nut- und Federbrettern, alle Blockbohlen mit 4-fach Eckausfräsung für eine wind- und regendichte Verbindung sowie Verglasungen bei Türen und Fenstern aus Isolierglas enthalten. Die Doppeltür ist mit einem hochwertigen Leimholzrahmen versehen, während die Türschwelle aus Aluminium gefertigt ist. Zur zusätzlichen Sicherung gegen Wind sind Sturmleisten im Lieferumfang enthalten.
Das Gartenhaus Atrium-40 A verfügt außerdem über ein Lüftungsgitter-Set, um eine bessere Luftzirkulation im Inneren zu gewährleisten. Ein Schloss, eine Drückergarnitur und das erforderliche Montagematerial werden ebenfalls mitgeliefert. Bitte beachten Sie, dass das Gartenhaus ohne Dachpappe geliefert wird und in unbehandeltem Naturholz ausgeliefert wird. Der Fußboden ist nicht im Lieferumfang enthalten, kann jedoch separat als Zubehör bestellt werden.
Wenn Sprossen im Lieferumfang von Fenstern oder Türen enthalten sind, werden diese separat mitgeliefert. Somit haben Sie die Möglichkeit, das Gartenhaus nach Ihren individuellen Vorlieben in einer klassischen Optik mit Sprossen/Holzkreuzen oder in einer moderneren Ausführung ohne Sprossen zu gestalten.
Eine seitenverkehrte Montage des Gartenhauses ist möglich, jedoch beachten Sie bitte, dass keine Montageanleitung für den seitenverkehrten Aufbau enthalten ist und die Türanschläge nicht verändert werden können.
Bitte beachten Sie, dass der Fußboden und die im Fußboden-Paket enthaltenen Fundamenthölzer nicht im Lieferumfang enthalten sind. Diese können jedoch separat als Zubehör bestellt werden.











Rezensionen
Es gibt noch keine Rezensionen.