Das Alpholz Gartenhaus Anna 44 ISO mit Satteldach bietet Ihnen eine kompakte und dennoch geräumige Lösung für Ihren Garten.
Hier sind die Details zu dem Artikel:
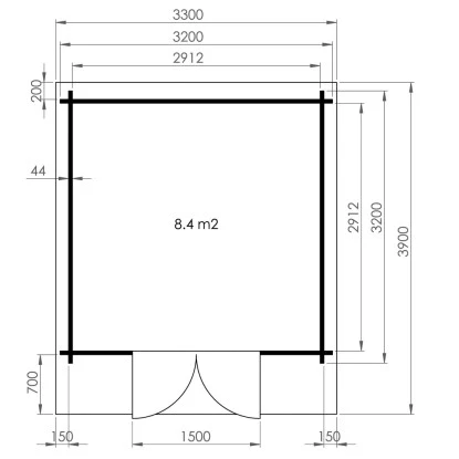
– Außenmaß: 330 cm x 390 cm
– Sockelmaß: 320 cm x 320 cm
– Seitenwandhöhe: ca. 210 cm
– Gesamthöhe: ca. 272 cm
– Nutzfläche: ca. 8,5 m²
– Rauminhalt: ca. 20,2 m³
– Extra hohe Doppeltür: ca. 144 cm x 202 cm
– Vordach: 70 cm
– Wandstärke: 44 mm
Im Lieferumfang enthalten sind:
– Massivholzfußboden aus Nut- und Federbrettern inklusive Fußleisten
– Massivholzdach aus Nut- und Federbrettern
– Alle Blockbohlen mit 4-fach Eckausfräsung (wind- und regendicht)
– Verglasung bei Türen aus Premium Isolierglas
– Hochwertige und extra hohe Doppeltür
– Hochwertige Türschwelle aus Aluminium
– Imprägnierte Fundamenthölzer
– Schloss, Drückergarnitur, Montagematerial und Montageplan
– Lieferung ohne Dachpappe
– Lieferung in natur ohne Farbbehandlung
Das Alpholz Gartenhaus Anna 44 ISO bietet Ihnen ein solides und praktisches Gartenhaus mit hochwertigen Materialien und ausreichend Platz für verschiedene Zwecke.











Rezensionen
Es gibt noch keine Rezensionen.